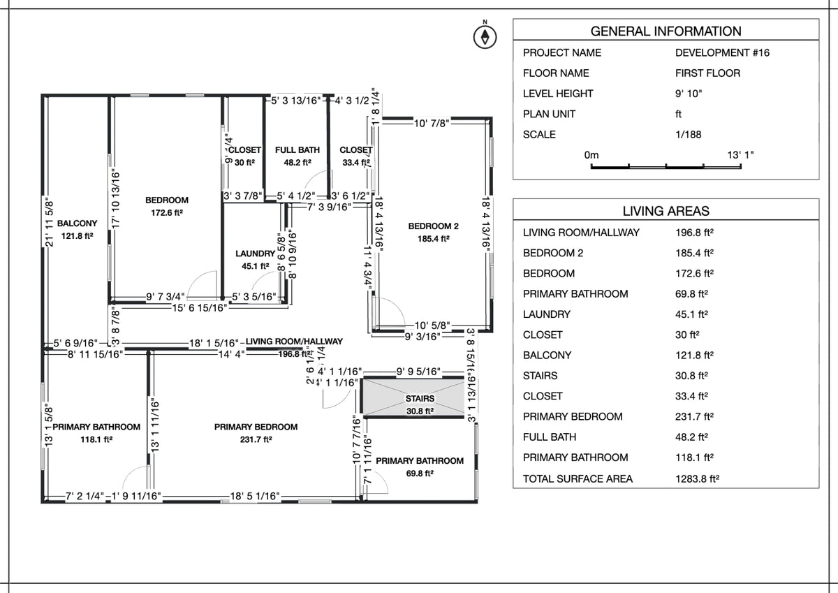
Approximately 2970 square foot modern designed home with unbeatable specs including a large rear facing balcony, 2 car garage, 4 spacious bedrooms, 3 full bathrooms, and a designated office space. This floor plan currently measures 33.9 ft in width x 46 ft. in depth. The height of the first floor measures 10'6", while the heights of the 2nd floor 9'10" ft.
What's Included
2D Floor Plans: House plan drawings indicating dimensions
Exterior Elevations: Drawings showing appearance and the types of materials used for the exterior finish and trim
Interior and Exterior Renders:Computerized images that beautifully capture the design of the house
Material and Fixture Selections: Pre selected and included in renders
DISCOUNTED Upgrade to Architectural Plans with Purchase
What's Not Included
Full Architectural Plans - (Elevation Plans, Foundation Plans, Mechanical, Electrical & Plumbing Plans, Site Plan)
These can be completed upon request with our in house architect
Would you like full buildable plans from our in house architect? Click HERE to contact us. In the message box please include "Monterrey Plan" and we will reach out ASAP
Share this on:
You may also like
Our Featured Design Package
Keep up when our weekly plans and designs drop - Sign up to be one of the first to grab it and add to your future portfolio!